Exterior elevation in black-and-white, front view
Construction Documentation
For Building Contractors, Developers, Realtors, Business Owners, & Homeowners
CM Design Studio has a deep understanding of the building and architectural industries. We can develop custom promotional packages of floor plans, exterior elevations, and renderings for your next development project.
Documentation Services
- Bid Document Sets 
- Builder Sets 
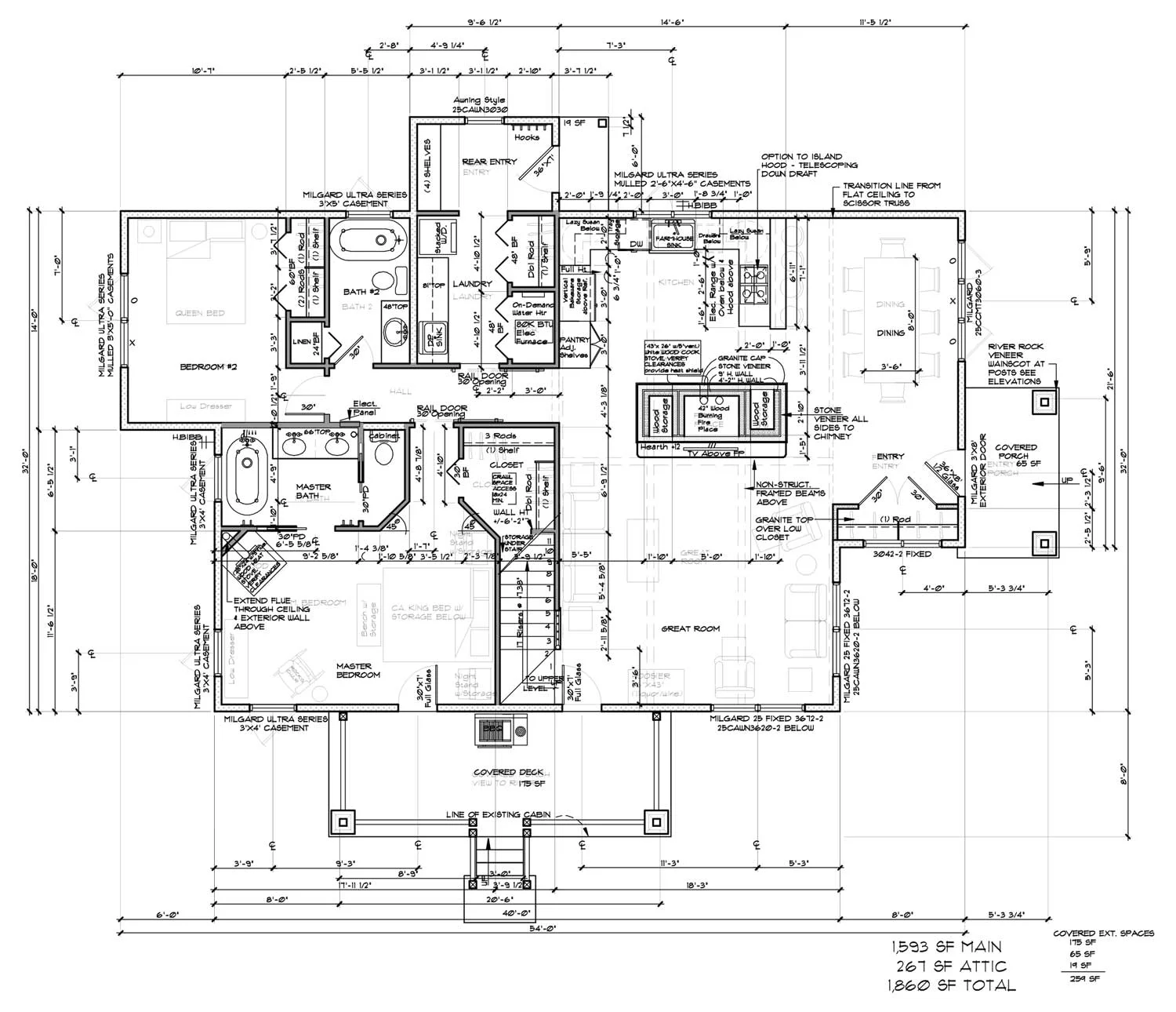
- Floor Plans 
- Renderings 
Uses for Construction Documents
- Obtain funding 
- Clarify design concepts to stakeholders 
- Unify subcontractors on project priorities and schedule 

 
             
            
           
            
           
                 
                 
                 
                 
                 
                 
                 
                 
                 
                